Villa a schiera centrale in vendita

Arzignano, Via Giovanni Cimabue
€ 110.000
3 locali 3 locali
102 Mq 102 Mq
1 bagno 1 bagno

Villa a schiera centrale in vendita

Arzignano, Via Giovanni Cimabue

Descrizione annuncio

UBICAZIONE E CONTESTO


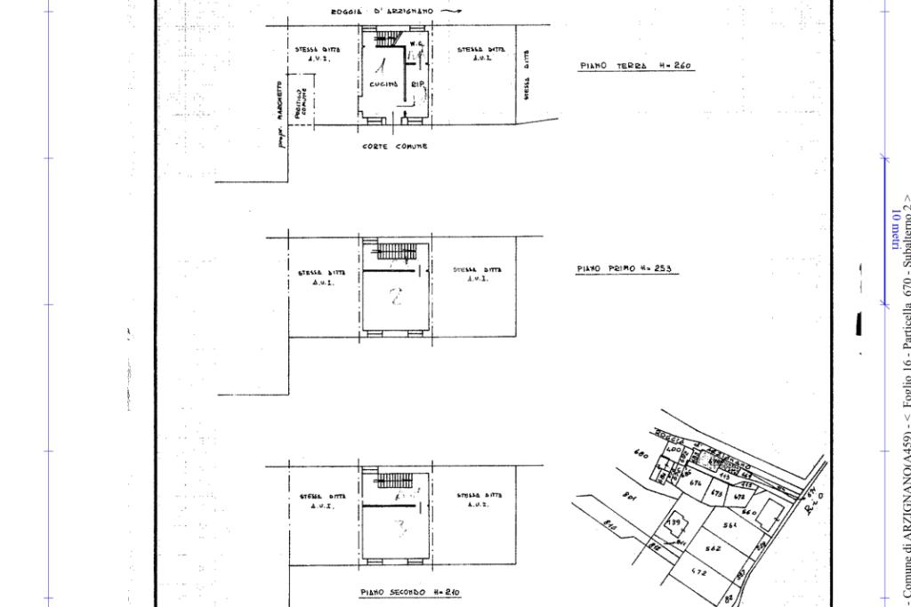
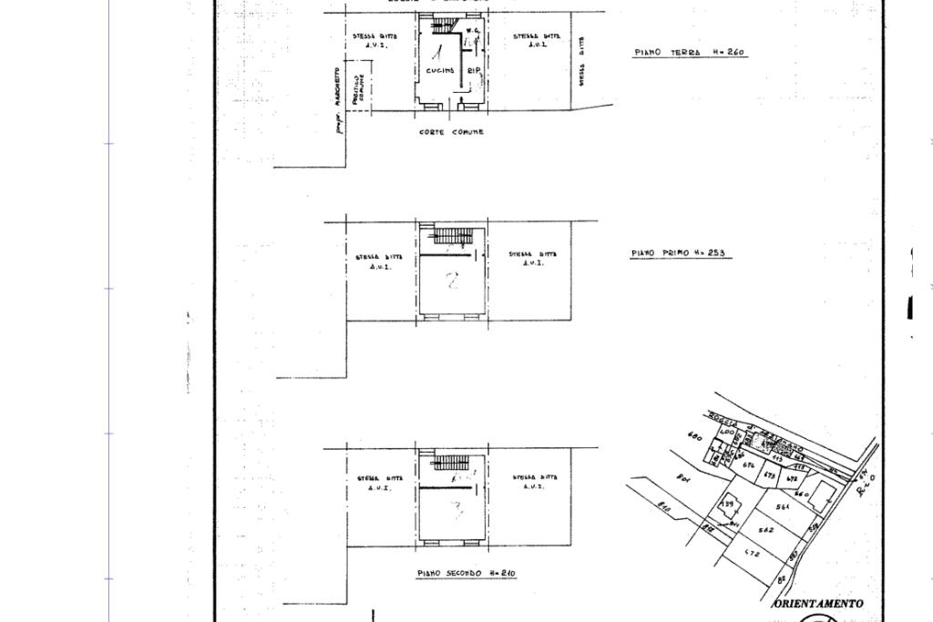
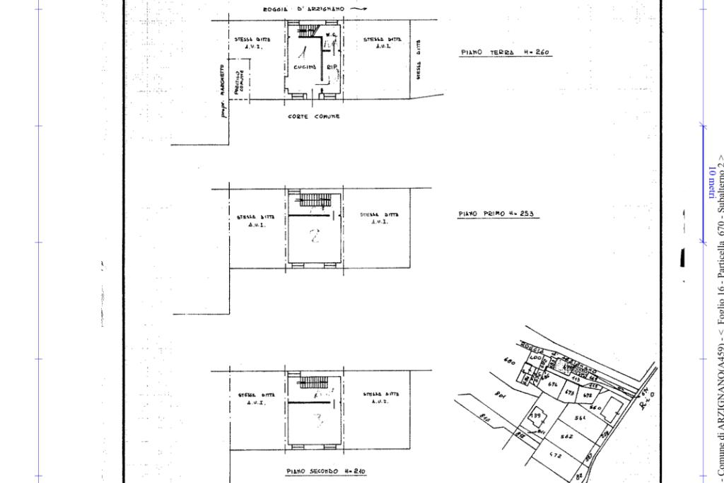
Ci troviamo a San Zeno di Arzignano, in una zona residenziale tranquilla, ben abitata e strategicamente comoda sia per la provincia di Chiampo che per Arzignano. Un contesto ideale per chi cerca serenità senza rinunciare alla comodità dei servizi. Qui prende vita una graziosa casa di corte sviluppata su 3 livelli, perfetta per chi desidera un ambiente accogliente e funzionale.

DESCRIZIONE E PARTICOLARITA'


Varcando la soglia, veniamo accolti da un luminoso soggiorno che regala subito una piacevole sensazione di casa. Sulla destra troviamo una cucina separata, pratica e ben organizzata, affiancata da un bagno finestrato completo di doccia.
Dal soggiorno, una scala conduce ai piani superiori dedicati alla zona notte.
Al primo piano si sviluppa una spaziosa camera matrimoniale finestrata, accompagnata da un comodo disimpegno.
Salendo al secondo piano, troviamo un’ulteriore camera matrimoniale, anch’essa ben distribuita e servita da un secondo disimpegno, ideale per garantire privacy e comfort.

COSE DA SAPERE SULL'IMMOBILE


A completare la proprietà troviamo un garage singolo e uno sfogo esterno privato di 42 mq, perfetto per momenti di relax all’aria aperta.
L’immobile è stato ristrutturato nei primi due piani sei mesi fa, offrendo così ambienti curati e pronti da vivere fin da subito. Sia l'impianto idraulico che quello elettrico sono stati sostituiti nel 2020, così come la caldaia.

Una soluzione perfetta per chi cerca charme, tranquillità e praticità in un’unica proposta!

Se pensi che questo immobile faccia al caso tuo, non esitare a contattarci! Come? Chiamaci allo 0444 47 87 96; o scrivici alla mail vihe3 Ti aspettiamo!

Mostra tutto

Nelle vicinanze

Trasporto pubblico Trasporto pubblico
Trasporto pubblico
880 m
Ricariche auto elettriche Ricariche auto elettriche
Parcheggio di Piazza Risorgimento
830 m
EnelX Conad Arzignano
2,0 Km
Scuole Scuole
Scuole
350 m
Scuola Media Antonio Giuriolo
1,6 Km
Ospedali Ospedali
Ospedale di Arzignano
790 m
Supermercati Supermercati
Connan
2,0 Km
Discount Dipiù
2,2 Km
Negozi Negozi
Intimissimi
850 m
Saint Mary
890 m
Oviesse
1,3 Km
Bar Bar
Bar San Rocco
480 m
Il Baretto
770 m
Bar Quarantaquattro
830 m
Money bar
850 m
Snoopy
1,7 Km
Ristoranti Ristoranti
L'Oca nera
410 m
Ai due forni
550 m
Da Celestina
2,7 Km
Mostra tutto

Caratteristiche

Rif.:
61200488
Piano:
3 di 3
Box:
1
Posti auto:
1
Balconi:
1
Terrazzi:
1
Mostra tutto
Prezzo Prezzo
€ 110.000
Rata mutuo Rata mutuo
€ 519 / mese
Spese annue Spese annue
€ 0
Proponi il tuo prezzoProponi il tuo prezzo

Classe Energetica

E
E
E
E
E
E
E
E
E
EP globale non rinnovabile:
160.00 kW h/m² anno
EP globale rinnovabile:
220.00 kW h/m² anno
EP invernale del fabbricato:
EP estiva del fabbricato:
Anno di costruzione:
1980
Riscaldamento:
Autonomo
Tipo impianto:
A radiatori
Tipo alimentazione:
Metano

Ti interessa visionare l'immobile?

Fissa un appuntamento  Fissa un appuntamento

Richiedi informazioni

Clicca su Leggi per aprire l'informativa
* Questi campi sono obbligatori

Calcola il tuo mutuo

Semplice e senza impegno
Anticipo

( % )
Mutuo

( % )

pochi semplici passi

inserisci i tuoi dati
Questionario completato
Grazie per aver richiesto un appuntamento senza impegno con un nostro Consulente del Credito e Assicurativo.

Hai inserito correttamente tutti i dati necessari e a breve riceverai una e-mail con un link da convalidare per inviare i tuoi dati.
Affiliato
Studio Arzignano Srl
Via Bruno dal Maso, 15 36072 Chiampo (VI)
Via Bruno dal Maso, 15 36072 Chiampo (VI)
Zona: Chiampo
Mostra su mappa
Affiliato
Studio Arzignano Srl
Via Bruno dal Maso, 15 36072 Chiampo (VI)

2026 Tecnocasa Franchising S.p.A. - P. IVA 08365160152 - Via Monte Bianco 60/A 20089 Rozzano (MI). Ogni agenzia ha un proprio titolare ed è autonoma. Privacy policy | Policy utilizzo | Cookie policy