Ufficio in vendita

Chiampo, via Arzignano
€ 112.000
4 locali 4 locali
121 Mq 121 Mq
2 bagni 2 bagni

Ufficio in vendita

Chiampo, via Arzignano

Descrizione annuncio

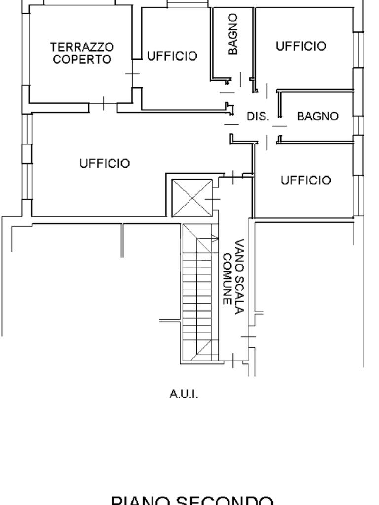
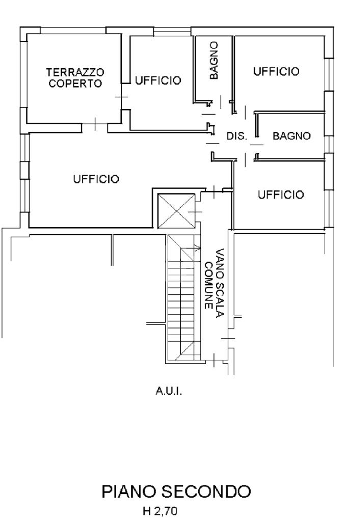
UBICAZIONE E CONTESTO

Nel cuore di Chiampo, in una zona strategica e comoda a tutti i principali servizi, proponiamo in vendita uno splendido ufficio direzionale situato al secondo ed ultimo piano di una palazzina signorile edificata nei primi anni 2000. Una soluzione elegante, moderna e pronta ad accoglierti.

DESCRIZIONE E PARTICOLARITA’

Entrando si accede alla reception, uno spazio luminoso, moderno e accogliente, perfetto per offrire fin dal primo istante una piacevole esperienza a clienti e visitatori.

Una porta scorrevole porta alla sala riunioni, un ambiente ampio, elegante e innondato di luce naturale grazie alle grandi vetrate, affiancato dal suo ufficio privato, ideale per lavorare in tranquillità e riservatezza.

Questa zona è servita da un bagno finestrato, curato nei dettagli e completo di una comoda doccia.

A completare la proprietà abbiamo un terzo studio, versatile e ben organizzato, dotato anch'esso di un secondo bagno finestrato con doccia, per garantire comfort e funzionalità a ogni necessità.

Una soluzione perfetta per studi professionali, ambulatori o attività che desiderano ambienti raffinati, pratici e pronti all'uso.

COSE DA SAPERE SULL'IMMOBILE

L'immobile è una classe energetica C, grazie alla presenza di riscaldamento a pavimento e split dell'aria condizionata in ogni stanza.

Gli infissi insonorizzati grantiscono comfort e tranquillità, mentre tutte le tapparelle sono motirizzate.

L'ampia vetrata del primo ufficio è anch'essa motorizzata, offrendo luminosità e praticità.

E' inoltre disponibile la possibilità di acquistare dei posti auto coperti a 5000,00€ caduno.

Se pensi che questa soluzione faccia al caso tuo, non esitare a contattarci!

Come? Chiamaci allo 0444 478796 o scrivici su Instagram alla pagina @tecnocasa_arzignano_chiampo. Ti aspettiamo!

Mostra tutto

Nelle vicinanze

Trasporto pubblico Trasporto pubblico
Trasporto pubblico
2,6 Km
Ricariche auto elettriche Ricariche auto elettriche
Parcheggio di Piazza Risorgimento
2,5 Km
Scuole Scuole
Scuole
360 m
Farmacia Farmacia
Farmacia
2,4 Km
Ospedali Ospedali
Ospedale di Arzignano
2,2 Km
Supermercati Supermercati
Famila
1,4 Km
Lidl
2,9 Km
Negozi Negozi
Vanzo
2,3 Km
Intimissimi
2,5 Km
Saint Mary
2,6 Km
Oviesse
3,0 Km
Bar Bar
Snoopy
50 m
Bar Carraro
440 m
Bar San Rocco
2,0 Km
Il Baretto
2,5 Km
Bar Quarantaquattro
2,5 Km
Ristoranti Ristoranti
Ai due forni
1,6 Km
La Pieve
1,7 Km
Al Ponte
1,9 Km
L'Oca nera
2,1 Km
Da Celestina
2,4 Km
Mostra tutto

Caratteristiche

Rif.:
61157817
Piano:
2 di 3 con ascensore (Piano alto)
Box:
1
Posti auto:
1
Balconi:
1
Condizionamento:
Autonomo
Mostra tutto
Prezzo Prezzo
€ 112.000
Rata mutuo Rata mutuo
€ 528 / mese
Spese annue Spese annue
€ 600
Proponi il tuo prezzoProponi il tuo prezzo

Classe Energetica

C
C
C
C
C
C
C
C
C
EP globale non rinnovabile:
40.00 kW h/m² anno
EP globale rinnovabile:
40.00 kW h/m² anno
EP invernale del fabbricato:
EP estiva del fabbricato:
Anno di costruzione:
2000
Riscaldamento:
Autonomo
Tipo impianto:
A pavimento
Tipo alimentazione:
Metano

Ti interessa visionare l'immobile?

Fissa un appuntamento  Fissa un appuntamento

Richiedi informazioni

Clicca su Leggi per aprire l'informativa
* Questi campi sono obbligatori

Calcola il tuo mutuo

Semplice e senza impegno
Anticipo

( % )
Mutuo

( % )

pochi semplici passi

inserisci i tuoi dati
Questionario completato
Grazie per aver richiesto un appuntamento senza impegno con un nostro Consulente del Credito e Assicurativo.

Hai inserito correttamente tutti i dati necessari e a breve riceverai una e-mail con un link da convalidare per inviare i tuoi dati.
Affiliato
Studio Arzignano Srl
Via Bruno dal Maso, 15 36072 Chiampo (VI)
Via Bruno dal Maso, 15 36072 Chiampo (VI)
Zona: Chiampo
Mostra su mappa
Affiliato
Studio Arzignano Srl
Via Bruno dal Maso, 15 36072 Chiampo (VI)

2026 Tecnocasa Franchising S.p.A. - P. IVA 08365160152 - Via Monte Bianco 60/A 20089 Rozzano (MI). Ogni agenzia ha un proprio titolare ed è autonoma. Privacy policy | Policy utilizzo | Cookie policy