Porzione di trifamiliare in vendita

Chiampo, Via Fracassi - Fracassi
€ 187.000
Prezzo aggiornato
3 locali 3 locali
123 Mq 123 Mq
1 bagno 1 bagno

Porzione di trifamiliare in vendita

Chiampo, Via Fracassi - Fracassi

Descrizione annuncio

UBICAZIONE E CONTESTO

Ci troviamo a Chiampo, in via Fracassi, una zona residenziale tranquilla e ben abitata, immersa nel verde ma allo stesso tempo comoda ai principali servizi. Qui proponiamo in vendita una porzione di bifamiliare al piano primo dagli spazi luminosi e ben distribuiti, con ingresso indipendente che garantisce privacy e autonomia.

DESCRIZIONE E PARTICOLARITA'

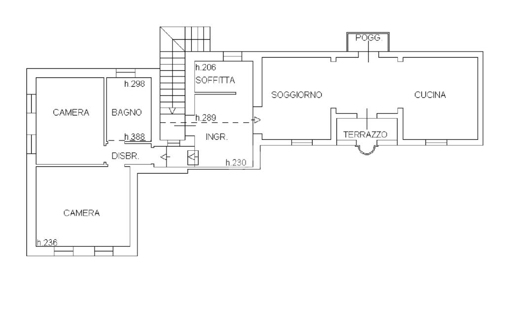
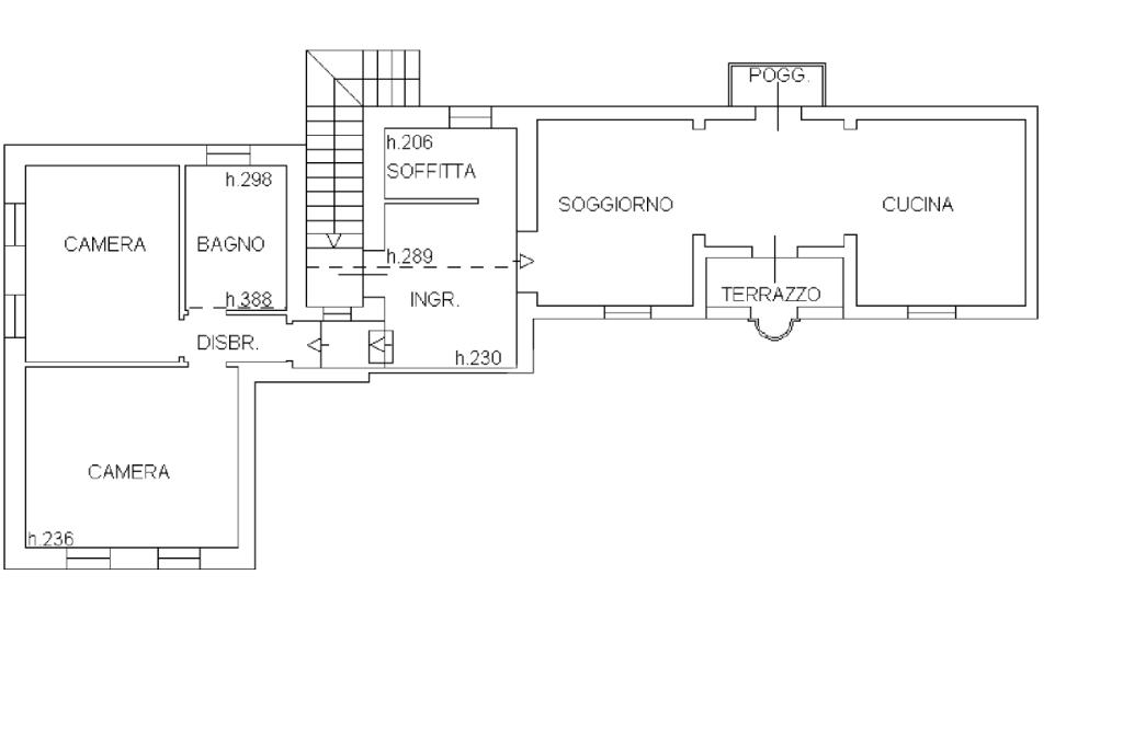
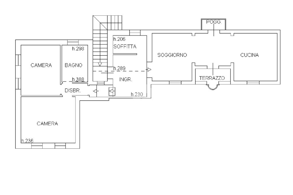
Una scala conduce all'ingresso indipendente, dove entrando, un disimpegno accogliente divide in modo funzionale la zona giorno dalla zona notte.

La zona giorno si apre su un soggiorno e cucina in open space, un ambiente arioso e conviviale, perfetto per vivere momenti in famiglia o con amici. Da qui si accede direttamente a due terrazzi comodi e pratici, con vista panoramica.

Seguendo il disimpegno, troviamo la zona notte composta da una camera matrimoniale ampia e luminosa, e da una camera doppia versatile, perfetta come stanza per bambini, ospiti o studio. A servizio dell'abitazione un bagno finestrato completo di vasca, confortevole e funzionale.

COSE DA SAPERE SULL'IMMOBILE

Completa la proprietà un garage di ben 39 mq, spazioso e funzionale, impreziosito da un pratico camino che lo rende un ambiente ancora più versatile.

L'intero stabile è del 2008.

Il riscaldamento è autonomo ed è suddiviso in sezioni, per una gestione ottimale dei consumi. E' inoltre presente la canna fumaria e una stufa a pellet con bocchettoni che diffondono il calore nella zona giorno, creando un'atmosfera calda e accogliente nei mesi invernali.

Una soluzione ideale per chi cerca tranquillità, comfort e indipendenza senza rinunciare alla comodità dei servizi.

Se pensi che questo immobile faccia al caso tuo, non esitare a contattarci! Come? Chiamaci allo 0444 47 87 96; o scrivici alla mail vihe3 Ti aspettiamo!

Mostra tutto

Nelle vicinanze

Scuole Scuole
Scuole
660 m
Farmacia Farmacia
Farmacia
2,1 Km
Ospedali Ospedali
Ospedale di Arzignano
2,8 Km
Supermercati Supermercati
Famila
1,2 Km
Supermercati
2,2 Km
Lidl
2,3 Km
Negozi Negozi
Vanzo
1,9 Km
Negozi
2,2 Km
Bar Bar
Bar Carraro
950 m
Snoopy
1,1 Km
Bar San Rocco
2,7 Km
Ristoranti Ristoranti
La Pieve
1,5 Km
Al Ponte
1,6 Km
Al cervo
2,1 Km
Ai due forni
2,6 Km
Cheope
2,6 Km
Mostra tutto

Caratteristiche

Rif.:
61179765
Piano:
1 di 2 (ultimo Piano)
Box:
1
Posti auto:
1
Balconi:
2
Terrazzi:
2
Mostra tutto
Prezzo Prezzo
€ 187.000
Rata mutuo Rata mutuo
€ 882 / mese
Spese annue Spese annue
€ 0
Proponi il tuo prezzoProponi il tuo prezzo

Classe Energetica

E
E
E
E
E
E
E
E
E
EP globale non rinnovabile:
128.95 kW h/m² anno
EP globale rinnovabile:
128.95 kW h/m² anno
EP invernale del fabbricato:
EP estiva del fabbricato:
Anno di costruzione:
2005
Riscaldamento:
Autonomo
Tipo impianto:
A radiatori
Tipo alimentazione:
Metano

Prezzo ridotto di €1 (11%%)

Ti interessa visionare l'immobile?

Fissa un appuntamento  Fissa un appuntamento

Richiedi informazioni

Clicca su Leggi per aprire l'informativa
* Questi campi sono obbligatori

Calcola il tuo mutuo

Semplice e senza impegno
Anticipo

( % )
Mutuo

( % )

pochi semplici passi

inserisci i tuoi dati
Questionario completato
Grazie per aver richiesto un appuntamento senza impegno con un nostro Consulente del Credito e Assicurativo.

Hai inserito correttamente tutti i dati necessari e a breve riceverai una e-mail con un link da convalidare per inviare i tuoi dati.
Affiliato
Studio Arzignano Srl
Via Bruno dal Maso, 15 36072 Chiampo (VI)
Via Bruno dal Maso, 15 36072 Chiampo (VI)
Zona: Chiampo
Mostra su mappa
Affiliato
Studio Arzignano Srl
Via Bruno dal Maso, 15 36072 Chiampo (VI)

2026 Tecnocasa Franchising S.p.A. - P. IVA 08365160152 - Via Monte Bianco 60/A 20089 Rozzano (MI). Ogni agenzia ha un proprio titolare ed è autonoma. Privacy policy | Policy utilizzo | Cookie policy